Verkocht onder voorbehoud:Goejanverwelle 80, 3467 PR Hekendorp - Foto
Verkocht onder voorbehoud
+66

Goejanverwelle 80 3467 PR Hekendorp € 695.000,- k.k.

  • Woonhuis
  • 6 kamers
  • 5 slaapkamers
  • 1 badkamer
  • Bouwjaar 1962
  • 329 m² perceeloppervlakte
  • 165 m² gebruiksoppervlakte
  • Gestoffeerd
  • B Energielabel B

Beschrijving

Ruime en lichte half vrijstaande woning met garage en heerlijke zonnige tuin.
Mogelijkheid om extra m² woonoppervlakte te creëren en prachtig vrij uitzicht aan voorkant en achterkant!

Algemeen
Een fijne, ruime gezinswoning met een tuin op het zuiden, gelegen in Hekendorp, een rustig dorp in het Groene Hart langs de Hollandse IJssel waar kinderen nog veilig en beschermd kunnen opgroeien. Met vijf slaapkamers is dit een ideale gezinswoning. Wordt deze fijne woning jullie nieuwe (t)huis?

Wonen
Deze woning heeft een ruime woonkamer met veel lichtinval door de vele raamkozijnen, aan de voorzijde is de open keuken, deze is voorzien van diverse inbouwapparatuur. In de hal bevindt zich een handige trap-/voorraadkast onder de trapopgang en een toilet. En aan de achterzijde van de woning is er ook nog een praktische bijkeuken met veel opbergruimte en een witgoedaansluiting. De begane grond is voorzien van plavuizen, parket en laminaat en net afgewerkte muren en plafonds.

Slapen
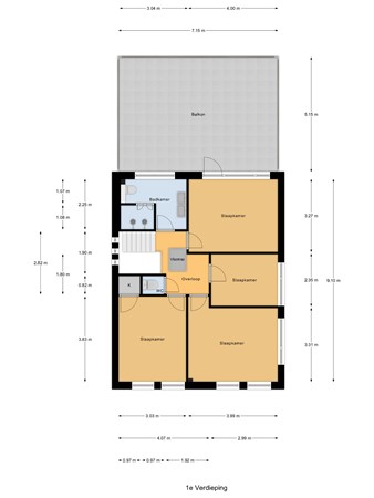
De woning heeft vier slaapkamers en een badkamer op de eerste verdieping. De badkamer is met een dubbele douche, een dubbele wastafel en een toilet ingericht. Via de slaapkamer aan de achterzijde van de woning is het ruime dakterras bereikbaar.
Ook op de bovenverdieping is er volop natuurlijk licht, wat zorgt voor een aangename sfeer en een ruimtelijk gevoel in het hele huis.

Op de tweede verdieping (nu bereikbaar via een vlizotrap) is er ruimte voor opslag of om extra slaapkamers te creëren.

Buitenleven
Verzorgde achtertuin gelegen op het zuiden, met terras, borders en gras, een heerlijke beschutte plek om ’s zomers in te vertoeven.
De tuin is bereikbaar via de bijkeuken, via de woonkamer of via de poort achterom. De vrijstaande stenen garage (voorzien van elektra) is ruim genoeg voor fietsen en (tuin)gereedschap en er is zelfs de mogelijkheid om een auto binnen te parkeren. Daarnaast is er in de achtertuin een buitenkraan aanwezig.

Indeling
Begane grond: Entree met meterkast, slaap/werkkamer, toegang tot de ruime, lichte woonkamer met open keuken en vanuit de woonkamer is er toegang tot de tuin door een schuifpui aan de achterzijde, hal met trapopgang, bergruimte en toiletruimte met wandcloset en een fontein, bijkeuken met wasmachine en droger aansluiting veel bergruimte en toegang tot de achtertuin.

Eerste verdieping: overloop, toiletruimte, vier slaapkamers, badkamer voorzien van dubbele douche, dubbele wastafel en toilet, groot dakterras met uitzicht over de tuin.
Tweede verdieping: bereikbaar via een vlizotrap, nu in gebruik als bergzolder met opstelplaats van de C.V. en Boiler maar hier is de mogelijkheid om extra slaapkamers te creëren.

Ligging
De woning bevindt zich aan de rand van Hekendorp, een klein dorp gelegen in het Groene Hart vlakbij de Reeuwijkse plassen waar het verkennen van de fraaie landelijke omgeving absoluut de moeite waard is. Ook in de omliggende polderlandschappen met speciale wandelroutes kun je heerlijk wandelen en recreëren. Het dorp kenmerkt zich door de grote gemeenschapszin met een actief en gezellig verenigingsleven. De woning beschikt aan beide zijden over vrij uitzicht, waarbij er aan de voorzijde uitzicht is op de monumentale, historische Prinsseseboerderij waar zich een keerpunt in de geschiedenis van de Nederlandse Republiek heeft afgespeeld.
Hekendorp ligt tussen Haastrecht en Oudewater alwaar u goed terecht kunt voor uw dagelijkse boodschappen en ook zijn er in de omgeving diverse landwinkels om direct van de boer verse streekproducten te verkrijgen! Voor de meer stadse voorzieningen, zoals uitgebreid winkelaanbod, bioscoop, theater en de vele restaurants en andere horeca zijn ook kaasstad Gouda, Zilverstad Schoonhoven en de historisch vestingstad Woerden dichtbij. Het basisonderwijs en het voortgezet onderwijs is binnen enkele minuten goed bereikbaar op de fiets, met de auto of met het openbaar vervoer, de bushalte ligt op nog geen 5 minuten loopafstand en heeft een directe verbinding naar Utrecht Centraal, Utrecht Science park en Gouda. De grote steden, zoals Den Haag en Rotterdam, zijn tevens binnen ca. 30 minuten bereikbaar.

Bijzonderheden
- Ruime woning met veel licht
- 5 slaapkamers (waarvan 1 op de begane grond)
- Heerlijk zonnige tuin gelegen op het zuiden
- Schuifpui naar de achtertuin
- Woning is voorzien van kunststof kozijnen m.u.v. de voordeur
- Centraal gelegen vlakbij de A12
- 24 Zonnepanelen
- Energielabel B
- Bouwjaar 1962

Vrijblijvende aanbieding:
Deze informatie, eventuele gesprekken, onderhandelingen etc. zijn allen vrijblijvend. Er is pas sprake van een overeenkomst op het moment dat de door ons kantoor opgestelde koopovereenkomst door beide partijen is (beoordeeld en) ondertekend. Zolang de koopakte niet door beide partijen is ondertekend, is er geen sprake van gebondenheid in welke zin dan ook en hebben partijen het recht zonder kostenvergoeding etc. af te zien van een transactie.

Kaart

Kenmerken

Overdracht

Referentienummer
1481
Vraagprijs
€ 695.000,- k.k.
Inrichting
Ja
Inrichting
Gestoffeerd
Status
Verkocht onder voorbehoud
Aanvaarding
In overleg
Aangeboden sinds
Dinsdag 9 december 2025
Laatste wijziging
Woensdag 6 mei 2026

Bouw

Type object
Woonhuis, eengezinswoning, half vrijstaande woning
Soort bouw
Bestaande bouw
Bouwperiode
1962
Dakbedekking
Dakpannen
Type dak
Zadeldak
Keurmerken
Energie prestatie advies
Isolatievormen
Dakisolatie
HR-glas
Muurisolatie

Oppervlaktes en inhoud

Perceeloppervlakte
329 m²
Woonoppervlakte
165 m²
Woonkameroppervlakte
32 m²
Keukenoppervlakte
13 m²
Inhoud
677 m³
Oppervlakte overige inpandige ruimten
20 m²
Oppervlakte externe bergruimte
19 m²
Oppervlakte gebouwgebonden buitenruimte
37 m²

Indeling

Aantal bouwlagen
3
Aantal kamers
6 (waarvan 5 slaapkamers)
Aantal badkamers
1 (en 2 aparte toiletten)

Locatie

Ligging
Aan rustige weg
Vrij uitzicht

Tuin

Type
Achtertuin
Hoofdtuin
Ja
Oriëntering
Zuiden
Heeft een achterom
Ja
Staat
Goed onderhouden

Energieverbruik

Energielabel
B

CV ketel

CV ketel
Nefit
Warmtebron
Gas
Bouwjaar
2024
Combiketel
Ja
Eigendom
Eigendom

Uitrusting

Warm water
CV-ketel
Elektrische boiler
Verwarmingssysteem
Centrale verwarming
Ventilatie methode
Mechanische ventilatie
Natuurlijke ventilatie
Keukenvoorzieningen
Inbouwapparatuur
Badkamervoorzieningen
Dubbele wastafel
Inloopdouche
Toilet
Parkeergelegenheid
Vrijstaande stenen garage
Heeft kabel-tv
Ja
Tuin aanwezig
Ja
Heeft een garage
Ja
Heeft schuur/berging
Ja
Heeft een dakraam
Ja
Heeft zonnepanelen
Ja
Heeft ventilatie
Ja

Kadastrale gegevens

Kadastrale aanduiding
Hekendorp C 179
Perceeloppervlakte
329 m²
Omvang
Geheel perceel
Eigendomsituatie
Eigen grond

Brochure(s) en overige bijlagen

goejanverwelle80.pdf Download